Lansdown

Lansdown 3 bedroom home

Opening hours

Monday: 10am - 5pm
Tuesday: - Closed
Wednesday: - Closed
Thursday: 10am - 5pm
Friday: 10am - 5pm
Saturday: 10am - 5pm
Sunday: 10am - 5pm


The Lansdown is a New Build 3 Bedroom Semi-Detached Home at Tennyson Fields in Louth!

Key Features: 

  • Kitchen/ Dining Area with French Doors to the Rear Garden
  • Integrated Appliances 
  • Spacious Lounge
  • Downstairs Cloakroom
  • Storage Cupboard

 

  • Master Bedroom with En-suite
  • Off-street Parking Spaces
  • 10 Year NHBC Warranty

 

Take a tour of a Lansdown Home

Let us help get you moving with a selection of Incentive Schemes available! 

Contact us to find out more!

Opening hours

Monday: 10am - 5pm
Tuesday: - Closed
Wednesday: - Closed
Thursday: 10am - 5pm
Friday: 10am - 5pm
Saturday: 10am - 5pm
Sunday: 10am - 5pm


Availability

Lansdown plots at Tennyson Fields 2, Louth are coming soon.

To hear regular updates and register your interest, click here.

Enquire Now

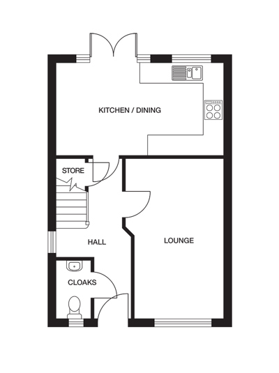
Floor Plans

Ground Floor

Kitchen / Dining

5248mm x 2862mm

17’ 3” x 9’ 5”

Lounge

3136mm x 4973mm

10’ 3” x 16’ 4”

Cloaks

1000mm x 1750mm

3’ 3” x 5’ 9”

Ground Floor

First Floor

Bedroom 1

3085mm x 3175mm

10’ 1” x 10’ 5”

En suite

2042mm x 1097mm

6’ 8” x 3’ 7”

Bedroom 2

2624mm x 3450mm

8’ 7” x 11’ 3”

Bedroom 3

2525mm x 2725mm

8’ 3” x 8’ 11”

Bathroom

2060mm x 2050mm

6’ 9” x 6’ 9”

First Floor

Specification

Included in this home: 

  • Choice of Symphony kitchen units*
  • Soft close doors & drawers
  • Choice of 40mm Post-formed Worktops & Upstand*
  • 1.5 Bowl Stainless Sink to Kitchen
  • Chrome Mixer Tap to Kitchen
  • Brushed Steel Double Electric Oven
  • Brushed Steel 4 Ring Gas Hob
  • Brushed Steel Splashback to Hob
  • Integrated Fridge Freezer
  • Chrome Downlighters to Kitchen & Bathroom

 

  • Ideal Standard Sanitaryware to Bathroom, Cloakroom & En-suite
  • Choice of Porcelanosa tiling to Cloakroom, Bathroom & En-suite*
  • BT Points to Lounge & Downstairs store
  • TV Points to Lounge
  • Fibre/ Broadband
  • 5 Panel Internal Doors in White Finish
  • Outside Light to Front of Property
  • Turf/ Soft Landscaping to Front Garden
  • Turf to Rear Garden
  • 10 Year NHBC Warranty
  • And much more!

 

*Subject to build stage



Development Layout

Use our interactive site plan to find your new home.

Available Sold Coming soon
154 155

House type key

  • CAISTOR 2 bedroom home
  • CLIFFORD 3 bedroom home
  • HENBURY 2 bedroom home
  • LANSDOWN 3 bedroom home
  • MILFORD 3 bedroom home
  • NEWBURY 3 bedroom home
  • PUTTENHAM 3 bedroom home
  • REDBOURNE 4 bedroom home
  • ROSEBERRY 4 bedroom home
  • TATTENHOE 4 bedroom home

This site layout is intended for illustrative purposes only and may be subject to change. Landscaping shown is suggestive only. This site plan does not form any part of a warranty or contract. This development layout plan depicts the intended layout and expected tenure mix as at the time of going to press. The location of affordable homes is indicative only and may change over time. Open market properties can be sold to a variety of interested parties. Any queries should be raised through the conveyancing process in the usual way. Further information is available from a site sales advisor or visit our Terms and Conditions page for more details.


Offers and Events

Offer main banner
Get moving for less to a new Lovell Home
Get moving for less to a new Lovell Home

Whether you’re a first-time home owner, you’re moving up the property ladder, or you’re ready to downsize, we have a range of special offers designed to help you and save you money.

View Offers

Selected plots. Terms and conditions apply.


Help to get you moving

Financing your new home

The easy and stress-free way to find affordable mortgage options

Use a handy online mortgage calculator to find some of the latest mortgage rates available to finance your new build Lovell home.

You can enquire about a particular option or book an appointment with our approved partner who will be happy to answer your questions, explain the latest offers and help you find the most suitable mortgage to fit your budget.

Why give it a try?

  • Found the right home? Now find the right mortgage to secure it
  • Saves time, admin' and stress
  • Support and advice from a new build mortgage specialist
  • A quick quote so you can compare your options
Ready?

We just need a few details from you and then we'll forward you on:

I would like to be kept informed about Lovell developments and offers that I may be interested in.
Would you like somebody to contact you regarding this development?

Any information provided will be processed according to our privacy policy.
We'll never share your email with anyone else.
£
Please be aware that Help To Buy will be subject to the regional price cap.

This website is operated by Lovell Partnerships Limited. Your use of this website is subject to our Website Terms and Conditions.

In partnership with one of our panel new homes mortgage specialists, RSC New Homes, you can view mortgage options that you may be eligible for. The Newbuild Mortgage Calculator is operated by RSC New Homes Limited and MortgageGym Solutions Limited "Online Mortgage Finder". RSC New Homes Limited is an appointed representative under FCA firm reference number 599876. RSC New Homes Limited is an appointed representative of First Complete Limited, which is authorised and regulated by the FCA under firm reference number 435779. Information regarding the way RSC New Homes Limited will collect and process your personal information is available at Lovell Homes | RSC New Homes

For more information about how we collect and use your personal information please see our Privacy Notice


Location

Tennyson Fields is situated in a quiet, residential area, designed  with people at its heart: a modern, community for all ages and stages of life.

Standing at the gateway to the Lincolnshire Wolds, Louth is a jewel in the county's crown. A picturesque market town with a modern outlook, Louth has developed a reputation as a haven for lovers of good food, with a range of independent retailers and weekly markets to choose from.

The particular charm of the town lies in its Georgian and Victorian architecture, dominated by the parish church of St James' which boasts one of England's finest medieval spires. Tennyson, one of the country's most famous poets, was educated in Louth and gives his name to our development.

The Lincolnshire Wolds are an Area of Oustanding Natural Beauty and its countryside is a magnet for walkers, riders and cyclists.

The area has a rich heritage and nowhere is this better demonstrated than in the historic villaes and market towns scattered across the Wolds with the attractions like the Claythorpe Watermill and Wildfowl Garden, and Hubbard's Hills, just outside Louth.

To the east lies the Lincolnshire coast with its blue flag beaches, such as Mablethorpe; to the north, Hull, City of Culture, with its bustling quayside cafes, bars and shops, is only an hour's drive away; and Lincoln, to the south west, has something for everyone; the Brayford Waterfront boutique shops and retaurants; its vibrant cultural quarter, and its history and heritage.

Chestnut Drive, Louth, Lincolnshire, LN11 7AX

All our developments are now open by appointment only.


Why buy new?

Spend up to £979.23* less on energy bills each yearand reduce your carbon footprint with your new build Lovell home

While fuel economy is front-of-mind for every householder, we're also increasingly conscious of the need to live more sustainably and how we can all do our bit towards helping the environment.

While fuel economy is front-of-mind for every householder, we're also increasingly conscious of the need to live more sustainably and how we can all do our bit towards helping the environment.

Research from the House Builder Federation, based on the Ofgem price cap from October 2024, using data from EPC registrations of new and existing properties in the year to 30 September 2024, reveals that the average new build house owner will pay just over £800 a year for heating, hot water and lighting, compared to £1,789 for those in older properties. This is a yearly saving of £979.

And in the country's efforts towards attaining net zero, the average new build house emits 65% less carbon than older houses: 1.22 tonnes of carbon per year, just 35% of that of the average older property, which emits an average of 3.51 tonnes per year.

Choose a Lovell new build and your household will also benefit from:

Energy Performance Rating
30% Less Water
Efficient Appliances
80% Less Electricity
Modern Technology
Energy Efficient Insulation

Learn more about how Lovell can help save you money and reduce greenhouse emissions




Reviews

Back to top

Viewing on Internet Explorer not recommended

For a better experience please install a new browser.

View Browser Options

Alternatively, click below to remain in Internet Explorer.

Remain in Internet Explorer