Crail, Oakwood Edge

Crail, Oakwood Edge 3 bedroom home

Opening hours

Monday: 10.30 - 17.30
Tuesday: - Closed
Wednesday: - Closed
Thursday: 10.30 - 17.30
Friday: 10.30 - 17.30
Saturday: 10.30 - 17.30
Sunday: 10.30 - 17.30


Key Features

  • 10 Year NHBC Warranty
  • Energy efficient home
  • Open plan kitchen/dining
  • French double doors to rear garden
  • Separate lounge
  • Cloakroom
  • Kitchen units by Symphony
  • Electrolux Appliances
  • En-suite to main bedroom
Virtual tour for guidance only.
Layout and specification to be confirmed by Sales Executive.
Description

Crail’s entrance hallway, with downstairs WC, leads into the spacious lounge where double doors connect to the bright dining area with fitted kitchen to create social space for entertaining family and friends. Stylish double French doors connect the dining area to the back garden, while a practical utility room lies off the kitchen.

Upstairs the landing, with sought-after storage, leads to the main bedroom with en suite, two further bedrooms and the family bathroom.

This three-bedroom detached house designed for modern family life would suit first-time buyers, families and downsizers alike.

ASK ABOUT EARLY BIRD OPTION

Opening hours

Monday: 10.30 - 17.30
Tuesday: - Closed
Wednesday: - Closed
Thursday: 10.30 - 17.30
Friday: 10.30 - 17.30
Saturday: 10.30 - 17.30
Sunday: 10.30 - 17.30


Availability

Crail plots at Oakwood Edge - Mayfield are coming soon.

To hear regular updates and register your interest, click here.

Enquire Now

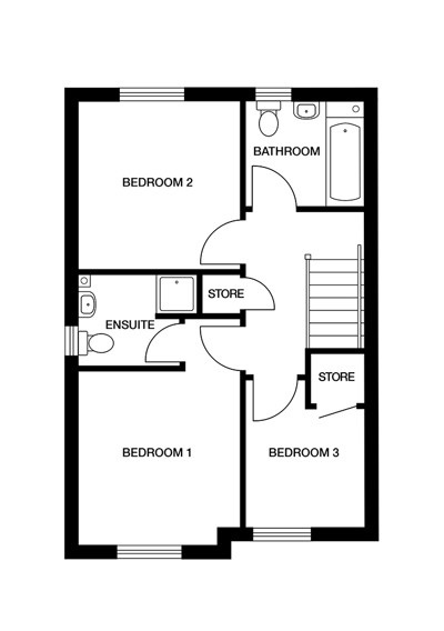
Floor Plans

Ground Floor

Kitchen / Dining 5430mm x 2960mm 17’ 9” x 9’ 8”

Lounge 5385mm x 2995mm 17’ 8” x 9’ 9”

Cloaks 1740mm x 1180mm 5’ 8” x 3’ 10”

Utility 2315mm x 1115mm 7’ 7” x 3’ 7”

Ground Floor

First Floor

Bedroom 1 3305mm x 3070mm 10’ 10” x 10’

En suite 1905mm x 1790mm 6’ 3” x 5’ 10”

Bedroom 2 3155mm x 3070mm 10’ 4” x 10’

Bedroom 3 2800mm x 2255mm 9’ 2” x 7’ 5”

Bathroom 2255mm x 1970mm 7’ 4” x 6’ 5”

First Floor

Specification

  • 10-year NHBC Warranty
  • Dual zone heating for energy cost saving
  • Symphony kitchen with soft close*
  • Electrolux Stainless Steel Single oven
  • Electrolux ceramic 4 ring electric hob
  • Electrolux Integrated Fridge Freezer
  • Stainless Steel Splashback to hob
  • Electrolux Stainless Steel Chimney Hood
  • Under Unit Lighting
  • Porcelanosa Wall tiling to bathroom, en-suite & cloakroom**
  • Ideal Standard sanitaryware
  • BT Point to Downstairs Store
  • Media Plate to Lounge
  • Outside Light to Front
  • Walls/Ceilings Painted White
  • White Satinwood Finish to Internal Joinery
  • Feature Internal Doors in White Finish
  • Chrome Ironmongery

* Choice of kitchen styles subject to build stage

** Choice of tiling subject to build stage


Development Layout

Use our interactive site plan to find your new home.

Available Sold Coming soon
AFFORDABLE HOUSING

House type key

  • ABERDOUR 2 bedroom home
  • BOTHWELL 3 bedroom home
  • BOTHWELL SEMI 3 bedroom home
  • CARNOUSTIE 3 bedroom home
  • CRAIL 3 bedroom home
  • DUNDONALD 3 bedroom home
  • ELMWOOD 4 bedroom home
  • GULLANE 4 bedroom home
  • INVERURIE 4 bedroom home

This site layout is intended for illustrative purposes only and may be subject to change. Landscaping shown is suggestive only. This site plan does not form any part of a warranty or contract. This development layout plan depicts the intended layout and expected tenure mix as at the time of going to press. The location of affordable homes is indicative only and may change over time. Open market properties can be sold to a variety of interested parties. Any queries should be raised through the conveyancing process in the usual way. Further information is available from a site sales advisor or visit our Terms and Conditions page for more details.


Offers and Events

Deposit boost
Deposit boost
Deposit Boost
Get a better mortgage deal with a 5% boost to your deposit

We all know how hard it can be to get on the property ladder these days, and for many, saving enough deposit can be the first hurdle.

View details

Selected plots. Terms and conditions apply.


Help to get you moving

Financing your new home

The easy and stress-free way to find affordable mortgage options

Use a handy online mortgage calculator to find some of the latest mortgage rates available to finance your new build Lovell home.

You can enquire about a particular option or book an appointment with our approved partner who will be happy to answer your questions, explain the latest offers and help you find the most suitable mortgage to fit your budget.

Why give it a try?

  • Found the right home? Now find the right mortgage to secure it
  • Saves time, admin' and stress
  • Support and advice from a new build mortgage specialist
  • A quick quote so you can compare your options
Ready?

We just need a few details from you and then we'll forward you on:

I would like to be kept informed about Lovell developments and offers that I may be interested in.
Would you like somebody to contact you regarding this development?

Any information provided will be processed according to our privacy policy.
We'll never share your email with anyone else.
£
Please be aware that Help To Buy will be subject to the regional price cap.

This website is operated by Lovell Partnerships Limited. Your use of this website is subject to our Website Terms and Conditions.

In partnership with one of our panel new homes mortgage specialists, RSC New Homes, you can view mortgage options that you may be eligible for. The Newbuild Mortgage Calculator is operated by RSC New Homes Limited and MortgageGym Solutions Limited "Online Mortgage Finder". RSC New Homes Limited is an appointed representative under FCA firm reference number 599876. RSC New Homes Limited is an appointed representative of First Complete Limited, which is authorised and regulated by the FCA under firm reference number 435779. Information regarding the way RSC New Homes Limited will collect and process your personal information is available at Lovell Homes | RSC New Homes

For more information about how we collect and use your personal information please see our Privacy Notice


Location

Set in the scenic Midlothian countryside with views towards Arthur’s Seat and the Firth of Forth, Oakwood Edge offers the best of both worlds — just ten miles from Edinburgh City Centre yet a world away from the hustle.

Enjoy countryside living with the Pentland Hills on your doorstep, while still being close to the historic town of Dalkeith, with its cafes, shops, and restaurants.

Excellent transport links and nearby schools make this a perfectly connected place to call home.

Oakwood Edge, Oak Place, Mayfield, Dalkeith, EH22 5NE

All our developments are now open by appointment only.


Why buy new?

Spend up to £979.23* less on energy bills each yearand reduce your carbon footprint with your new build Lovell home

While fuel economy is front-of-mind for every householder, we're also increasingly conscious of the need to live more sustainably and how we can all do our bit towards helping the environment.

While fuel economy is front-of-mind for every householder, we're also increasingly conscious of the need to live more sustainably and how we can all do our bit towards helping the environment.

Research from the House Builder Federation, based on the Ofgem price cap from October 2024, using data from EPC registrations of new and existing properties in the year to 30 September 2024, reveals that the average new build house owner will pay just over £800 a year for heating, hot water and lighting, compared to £1,789 for those in older properties. This is a yearly saving of £979.

And in the country's efforts towards attaining net zero, the average new build house emits 65% less carbon than older houses: 1.22 tonnes of carbon per year, just 35% of that of the average older property, which emits an average of 3.51 tonnes per year.

Choose a Lovell new build and your household will also benefit from:

Energy Performance Rating
30% Less Water
Efficient Appliances
80% Less Electricity
Modern Technology
Energy Efficient Insulation

Learn more about how Lovell can help save you money and reduce greenhouse emissions



Reviews

Back to top

Viewing on Internet Explorer not recommended

For a better experience please install a new browser.

View Browser Options

Alternatively, click below to remain in Internet Explorer.

Remain in Internet Explorer