Newbury

Newbury 3 bedroom home

Opening hours

Monday: 10am - 5pm
Tuesday: 10am - 5pm
Wednesday: 10am - 5pm
Thursday: 10am - 5pm
Friday: 10am - 5pm
Saturday: 10am - 5pm
Sunday: 10am - 5pm


Key features
  • Kitchen / dining room with French doors leading onto garden
  • Separate living room
  • Downstairs WC
  • Fitted Contemporary Style Kitchen
  • Integrated Appliances
  • En-suite to master bedroom
  • 10 Year NHBC Warranty
  • Allocated Parking
  • 2 Year Emergency Cover
Description 

The Newbury is a three-bedroom home with single garage and parking featuring a kitchen / dining room with French doors leading out on to the garden.

A separate living room and cloakroom completes the ground floor.

There are three bedrooms upstairs, an en-suite to the master bedroom and a family bathroom.

Opening hours

Monday: 10am - 5pm
Tuesday: 10am - 5pm
Wednesday: 10am - 5pm
Thursday: 10am - 5pm
Friday: 10am - 5pm
Saturday: 10am - 5pm
Sunday: 10am - 5pm


Availability

Plot Number Offers Bedrooms Price Status Information
plot 218 View offers 3 bedroom home £375,000 Available Important Info

Floor Plans

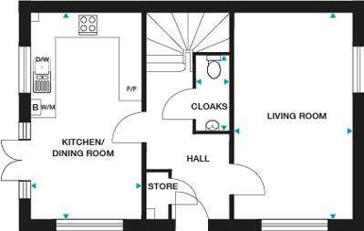
Ground floor

Kitchen/Dining Room 3028mm x 5473mm (max) 9’11” x 17’11” (max)
Living Room 3212mm x 5473mm 10’6” x 17’11”
Cloaks 893mm x 2048mm (max) 2’11” x 6’8” (max)

Ground floor

First floor

Bedroom 1 3028mm x 3100mm 9’11” x 10’2”
En-suite 1410mm x 2280mm (max) 4’7” x 7’5” (max)
Bedroom 2 3212mm x 2860mm 10’6” x 9’4”
Bedroom 3 3212mm x 2520mm 10’6” x 8’3”
Bathroom 2196mm x 1970mm (max) 7’2” x 6’5” (max)

First floor

Specification

  • 10 year NHBC Warranty
  • 2 Year emergency cover
  • Combi-boiler/cylinders central heating system
  • Symphony fitted kitchen with soft closers to cupboards & drawers
  • Worktop with upstands
  • Fan assisted oven in brushed steel
  • Gas hob with cooker hood
  • Stainless steel splashback
  • 1 ½ bowl stainless steel sink with mixer tap
  • Integrated fridge freezer
  • Plumbing for washing machine
  • Chrome downlighters to kitchen**
  • White Ideal Standard sanitaryware
  • Mira taps and fittings
  • Porcelanosa wall tiles* to bathrooms, cloakrooms and en-suites**
  • Low maintenance GRP composite front door
  • White gloss internal doors
  • UPVC rear door
  • UPVC double-glazed windows and French doors**
  • Chrome internal ironmongery
  • White sockets and switches, TV & BT sockets
  • Chrome downlighters**
  • Media plate to lounge and bedroom 1
  • Pendant light fitting to all other rooms
  • Chrome door bell
  • White emulsion walls and ceilings
  • White gloss to woodwork
  • Mains-operated smoke detectors
  • Timber 1800mm fence on timber posts***
  • PIR activation external light to front door
  • Turf to front and rear gardens***

* Choice of tiles subject to build stage ** Please check with Sales Executive for details of specific housetype *** Refer to landscaping and boundary treatment plan



Development Layout

Use our interactive site plan to find your new home.

Available Sold Coming soon
5 5 412 412 6 7 6 7 8 9 10 11 12 13 14 15 12 13 14 15 16 17 18 18 19 20 19 20 21 22 22 23 24 25 26 25 26 27 V V 28 27 28 29 30 31 32 33 34 49 50 51 52 51 52 53 53 49 50 35 34 35 36 37 36 37 38 38 39 40 39 40 V V V 33 31 32 29 30 23 24 17 16 10 11 54 55 56 55 56 57 58 59 60 61 62 63 64 65 66 67 67 67 68 69 68 69 70 71 72 73 74 75 76 77 78 79 80 82 83 84 85 86 87 86 87 88 88 89 90 91 92 93 94 95 96 98 99 98 99 96 97 94 95 V V 92 93 90 91 89 84 85 82 83 80 81 81 77 78 79 76 74 75 71 72 73 70 65 66 63 64 61 62 59 60 57 58 100 115 115 115 116 117 116 117 118 118 119 120 119 120 121 122 123 124 125 126 125 126 127 128 129 130 131 132 133 133 134 135 136 137 138 139 140 140 141 142 143 144 143 144 145 145 146 146 147 148 149 150 151 152 153 154 155 156 157 158 159 156 157 158 159 160 161 162 161 162 163 163 164 165 166 167 165 166 167 168 169 170 171 172 170 171 172 173 174 174 175 175 176 177 178 178 179 180 181 182 183 184 185 186 187 188 187 188 189 190 189 190 191 192 191 192 193 193 185 186 183 184 179 V 180 181 182 173 169 168 164 V V V V 160 152 153 154 155 149 V 150 151 147 148 142 138 139 136 137 134 135 131 132 129 130 127 128 124 122 123 121 101 102 103 104 105 106 107 108 109 108 109 V V 110 110 111 111 112 112 113 114 113 114 V V V V 194 195 195 196 197 198 196 197 V 198 199 200 199 200 201 201 202 202 203 204 206 203 204 206 205 205 194 207 208 209 209 210 210 211 212 213 214 215 216 217 218 218 219 220 219 220 221 222 221 222 223 224 223 224 225 225 225 V V V V V 215 216 217 213 214 211 212 207 208 226 227 228 229 230 226 226 V V V V 227 228 229 230 231 232 233 234 235 236 237 238 235 236 237 238 239 240 241 242 239 240 241 242 243 244 243 244 243 244 245 246 247 248 249 250 251 252 251 252 253 250 253 248 249 247 246 247 254 255 256 257 258 259 260 261 262 263 264 265 266 267 268 267 268 269 270 271 272 272 273 273 274 275 276 275 276 274 271 269 270 265 266 264 262 263 260 261 258 259 256 257 255 V V V V V 254 277 278 279 277 277 278 279 280 V 281 282 280 281 282 283 283 284 284 285 285 286 286 287 290 291 290 291 287 288 289 288 289 292 292 293 294 295 296 293 294 295 296 297 297 298 299 300 301 302 302 303 303 304 305 306 304 305 306 307 308 307 308 309 310 311 312 312 309 310 311 V V 300 301 298 299 313 314 315 314 315 316 316 317 317 318 318 319 V V V V V V V 319 313 320 321 322 320 321 322 323 324 325 323 324 325 326 327 326 327 328 329 328 329 330 330 331 331 332 332 333 334 335 336 337 338 337 338 335 336 333 334 339 339 340 341 340 341 342 343 342 343 344 345 346 346 347 347 348 348 344 345 349 350 351 352 353 V V 353 351 352 349 350 354 355 354 355 356 357 358 358 359 360 359 360 361 362 362 363 364 365 366 365 366 367 368 369 370 371 372 373 373 374 375 374 375 376 376 377 377 378 378 379 380 381 382 382 383 384 384 385 386 385 386 387 388 389 390 388 389 390 393 393 394 395 394 395 396 397 396 397 V V 387 371 372 369 370 367 368 363 364 361 391 392 392 391 398 399 400 400 398 399 401 402 401 402 V V 403 404 405 405 403 404 406 406 407 408 407 408 409 410 409 410 411 411 6 7 8 9 10 11 12 13 14 15 16 17 18 19 20 21 22 23 24 25 26 27 28 29 30 31 32 33 34 35 36 37 38 39 40 49 50 51 52 53 54 55 56 57 58 59 60 61 62 63 64 65 66 67 68 69 70 71 72 73 74 75 76 77 78 79 80 81 82 83 84 85 86 87 88 89 90 91 92 93 94 95 96 97 98 99 108 109 110 111 112 113 114 115 116 117 118 119 120 121 122 123 124 125 146 147 148 149 150 151 152 153 154 155 156 157 158 159 221 222 223 224 225 226 227 228 229 230 266 267 268 269 270 271 272 273 274 275 276 277 278 279 280 281 282 283 284 285 286 287 288 289 290 302 303 304 305 306 307 308 309 310 311 312 313 314 315 316 317 318 319 320 321 322 323 324 325 326 327 328 329 330 331 332 339 340 341 342 343 345 348 349 350 351 352 353 354 355 356 357 358 359 360 362 363 364 365 366 367 368 369 370 371 372 373 374 375 376 377 378 379 380 381 382 383 384 385 386 387 388 389 390 391 392 393 394 395 396 397 399 398 361 347 346 344 407 408 409 410 411 LEAP LAP 1 LAP 2 LAP 4 LAP 3 A342 MOD TRAIN LINE AFFORDABLE HOMES FOR RENT FROM STONEWATER AFFORDABLE HOMES FOR SHARED OWNERSHIP FROM STONEWATER

House type key

  • CAVENDISH 3 bedroom home
  • GAINSBOROUGH 2 bedroom home
  • LAMBERHURST 3 bedroom home
  • LAMBOURNE 3 bedroom home
  • LANSDOWN 3 bedroom home
  • MILFORD 3 bedroom home
  • MOTTRAM 3 bedroom home
  • NEWBURY 3 bedroom home
  • OMBERSLEY 4 bedroom home
  • ROSEBERRY 4 bedroom home
  • STOCKWOOD 4 bedroom home

This site layout is intended for illustrative purposes only and may be subject to change. Landscaping shown is suggestive only. This site plan does not form any part of a warranty or contract. This development layout plan depicts the intended layout and expected tenure mix as at the time of going to press. The location of affordable homes is indicative only and may change over time. Open market properties can be sold to a variety of interested parties. Any queries should be raised through the conveyancing process in the usual way. Further information is available from a site sales advisor or visit our Terms and Conditions page for more details.


Offers and Events

Home of the week Gainsborough CGI[PV]Lanes

Gainsborough - Plot 182

2 bedroom home

  • Flooring included
  • £3,500 towards lights and blinds
  • £1,500 towards legal fees
  • Living room with French doors leading onto garden
  • Downstairs WC
  • Fitted Contemporary Style Kitchen
  • Integrated Appliances
  • 10 Year NHBC Warranty
  •  Parking
  • 2 Year Emergency Cover
Find out more
Forces help to buy
Forces help to buy
Forces Help to Buy
A more affordable way to get on the property ladder for Forces personnel

Getting onto the property ladder can be challenging for Army, Navy and RAF personnel, but help is at hand with the Forces Help to Buy scheme.

View details

Selected plots. Terms and conditions apply.


Help to get you moving

Financing your new home

The easy and stress-free way to find affordable mortgage options

Use a handy online mortgage calculator to find some of the latest mortgage rates available to finance your new build Lovell home.

You can enquire about a particular option or book an appointment with our approved partner who will be happy to answer your questions, explain the latest offers and help you find the most suitable mortgage to fit your budget.

Why give it a try?

  • Found the right home? Now find the right mortgage to secure it
  • Saves time, admin' and stress
  • Support and advice from a new build mortgage specialist
  • A quick quote so you can compare your options
Ready?

We just need a few details from you and then we'll forward you on:

I would like to be kept informed about Lovell developments and offers that I may be interested in.
Would you like somebody to contact you regarding this development?

Any information provided will be processed according to our privacy policy.
We'll never share your email with anyone else.
£
Please be aware that Help To Buy will be subject to the regional price cap.

This website is operated by Lovell Partnerships Limited. Your use of this website is subject to our Website Terms and Conditions.

In partnership with one of our panel new homes mortgage specialists, RSC New Homes, you can view mortgage options that you may be eligible for. The Newbuild Mortgage Calculator is operated by RSC New Homes Limited and MortgageGym Solutions Limited "Online Mortgage Finder". RSC New Homes Limited is an appointed representative under FCA firm reference number 599876. RSC New Homes Limited is an appointed representative of First Complete Limited, which is authorised and regulated by the FCA under firm reference number 435779. Information regarding the way RSC New Homes Limited will collect and process your personal information is available at Lovell Homes | RSC New Homes

For more information about how we collect and use your personal information please see our Privacy Notice


Location

Situated in the town of Ludgershall, which has military ties dating back to WWII, Drummond Park is a stunning collection of desirable 2, 3 and 4 bedroom homes being created in partnership with Homes England.

A development split into three distinct areas (High Street, Lanes and Farmstead), each drawing on the characteristics of the surrounding areas. The carefully considered selection of house styles available will ensure that people at all stages of the property ladder are well catered for.

Freeman Drive, Ludgershall, Wiltshire, SP11 9UL

All our developments are now open by appointment only.


Why buy new?

Spend up to £979.23* less on energy bills each yearand reduce your carbon footprint with your new build Lovell home

While fuel economy is front-of-mind for every householder, we're also increasingly conscious of the need to live more sustainably and how we can all do our bit towards helping the environment.

While fuel economy is front-of-mind for every householder, we're also increasingly conscious of the need to live more sustainably and how we can all do our bit towards helping the environment.

Research from the House Builder Federation, based on the Ofgem price cap from October 2024, using data from EPC registrations of new and existing properties in the year to 30 September 2024, reveals that the average new build house owner will pay just over £800 a year for heating, hot water and lighting, compared to £1,789 for those in older properties. This is a yearly saving of £979.

And in the country's efforts towards attaining net zero, the average new build house emits 65% less carbon than older houses: 1.22 tonnes of carbon per year, just 35% of that of the average older property, which emits an average of 3.51 tonnes per year.

Choose a Lovell new build and your household will also benefit from:

Energy Performance Rating
30% Less Water
Efficient Appliances
80% Less Electricity
Modern Technology
Energy Efficient Insulation

Learn more about how Lovell can help save you money and reduce greenhouse emissions


Keep up to date

Discover the latest development news



Reviews

Back to top

Viewing on Internet Explorer not recommended

For a better experience please install a new browser.

View Browser Options

Alternatively, click below to remain in Internet Explorer.

Remain in Internet Explorer